1ПР 19

Чертеж изделия:
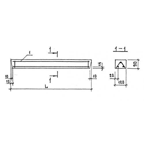
Характеристики изделия:
ПараметрЗначение
длина1940 мм
ширина120 мм
высота90 мм
вес55 кг
серия1.138-10

1ПР 19 Перемычки брусковые по серии 1.138-10.