1ПР 16

Чертеж изделия:
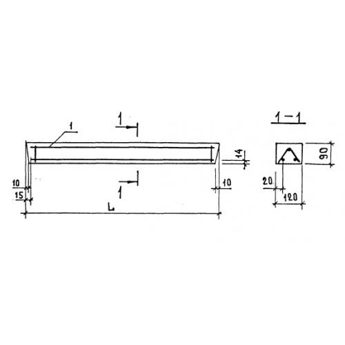
Характеристики изделия:
ПараметрЗначение
длина1680 мм
ширина120 мм
высота90 мм
вес45 кг
серия1.138-10

1ПР 16 Перемычки брусковые по серии 1.138-10.