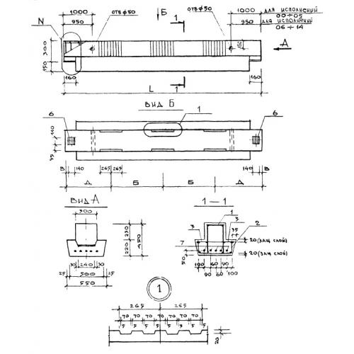
РДП 4.69
Характеристики изделия:
| Параметр | Значение |
|---|---|
| длина | 6760 мм |
| ширина | 550 мм |
| высота | 450 мм |
| масса | 3025 кг |
| нормативный документ | Серия 1.020-1 |
Цена:
Рассчитать стоимостьРДП 4.69 Ригели с двумя полками Серия 1.020-1.
| Параметр | Значение |
|---|---|
| длина | 6760 мм |
| ширина | 550 мм |
| высота | 450 мм |
| масса | 3025 кг |
| нормативный документ | Серия 1.020-1 |
РДП 4.69 Ригели с двумя полками Серия 1.020-1.
